Address: Calle Alt de Sant Pere, núm. 7
Postal code: 08110
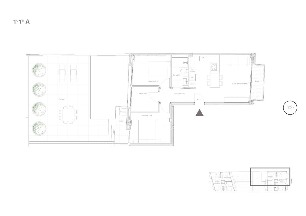
Descripción:Vivienda de obra nueva, en Calle Alt de Sant Pere, situada en una 1a planta, 107mt construidos los cuales se distribuyen en:
- 3 habitaciones (de 10mt, 9mt y 5mt)
- 1 baño con ducha de 4mt
- Salón con cocina americana de 21mt
- 1 balcón de 6mt
- Terraza privada de 44mt
Desde Finques Bonallar os presentamos esta promoción de obra nueva en una de las mejores zonas de Montcada i Reixac, Masrampinyo. Compuesta por 2 edificios independientes, con fachada a las calles Alt de Sant Pere y calle Aragó que cuenta con un total de 10 viviendas de 1 a 3 dormitorios, con terrazas, amplios espacios interiores además de espacios comunes y una planta dedicada a aparcamiento a pie de calle con capacidad para 10 plazas con preinstalación para vehículos eléctricos. Cuenta con las mejores calidades del mercado y últimas tecnologías aplicables en la construcción, donde la calidad de vida y la sostenibilidad energética priman por encima de todos los aspectos. Finca equipada con ascensor.
Sistema de calefacción y climatización por Aero termia. Iluminación empotrada Donwlight de LED. Instalación de telecomunicaciones y fibra óptica en todas las estancias de la vivienda. Puertas de acceso blindadas, interiores monobloc lacadas en blanco. Carpintería exterior de aluminio Climalit con rotura de puente térmico y persianas motorizadas. Pavimento de parquet flotante AC4.
La promoción se sitúa dentro del área metropolitana en una zona inmejorable de la ciudad de Montcada i Reixac, justo delante de una gran zona verde, cines, restaurantes, hoteles y centros comerciales, estación de Renfe, autobuses y muy buenas conexiones con C-17, C-58, AP-7.
LAS OBRAS YA HAN EMPEZADO ESTE MES DE ENERO Y TIENEN UNA DURACIÓN DE 18 MESES
¡Llámanos para más información, NO LO DEJES ESCAPAR!